Sold

WITTA CIRCLE BUYERS ALERT !



This prominent stately residence has been owned by the same family since Noosa Sound was created and is now priced to sell!

The owners need to downsize. Their stately architect designed large home and private pool is situated on the north eastern curve of the Island of Witta Circle which is metres from Hastings Street and Noosa Beach.

Across the river to the treed Little Cove and Halse Lodge, is the outlook from the cool covered decks.

The design has captivated the best of the northern aspect, providing the cool in summer and the warmth in winter.

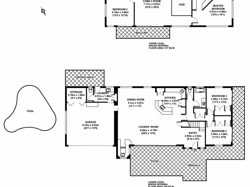
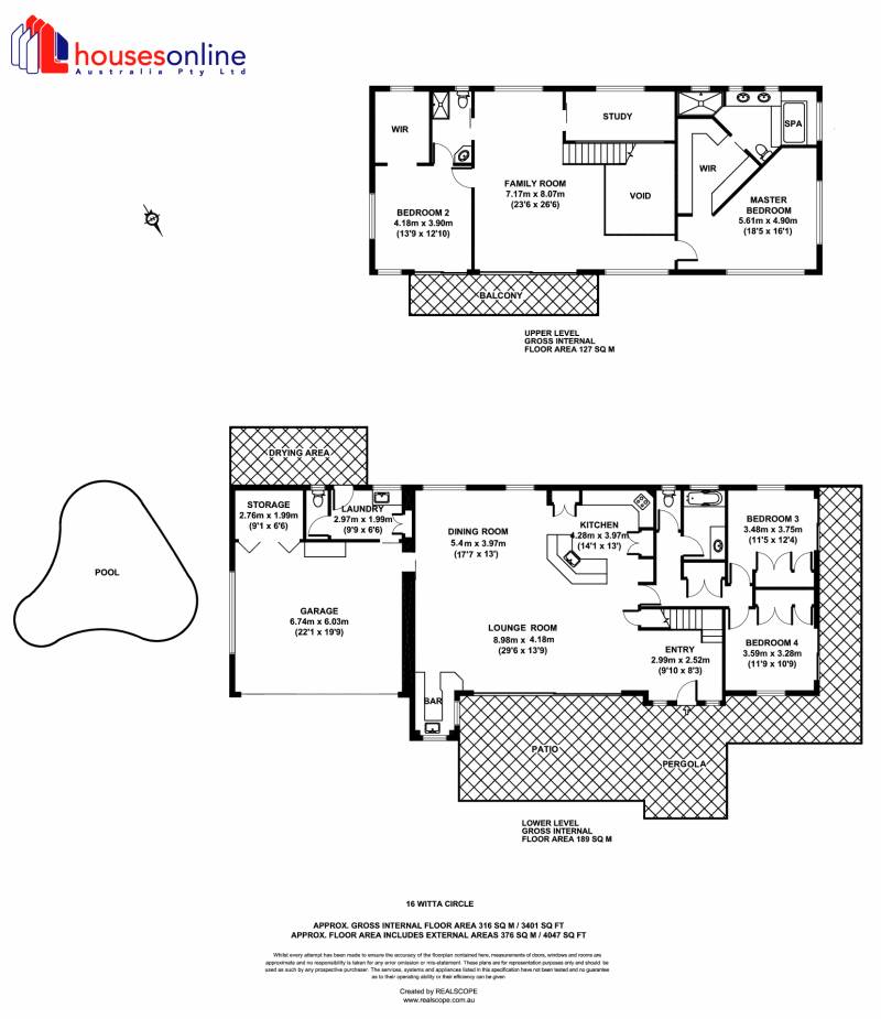
The upper level of the home has its own office and lounge, leading to the deck, as well as two large private ensuited bedrooms. Below there is yet again another lounge, bar, dining, kitchen, 3 large bedrooms and bathroom.

All comforts for easier practical living have been considered.

You can stroll across the bridge to pick up the morning papers and bread after a swim at Noosa Beach, then return and dip in your own private pool.

This is a great property in so many ways.

"Witta circle is possibly the most expensive street in Noosa" ( Stated The Daily newspaper on 18th Dec 2010 )

Suitable for either holiday letting or permanent living!


Possibly the last chance to acquire one of the most desired locations in Noosa at this price !

Sustainability Declaration available with Agent.

Features

in-Ground Pool Balcony Deck Outdoor entertainment area
4 3 2 738 m2
Address 16 WITTA CIRCLE, Noosa Heads
Price SOLD
Property Type Residential
Property ID 48
Category House
Land Area 738 m2

Agent Details

Ronald Davey photo

Ronald Davey

0412206563
View Profile