Sold

Noosaville

SOLD

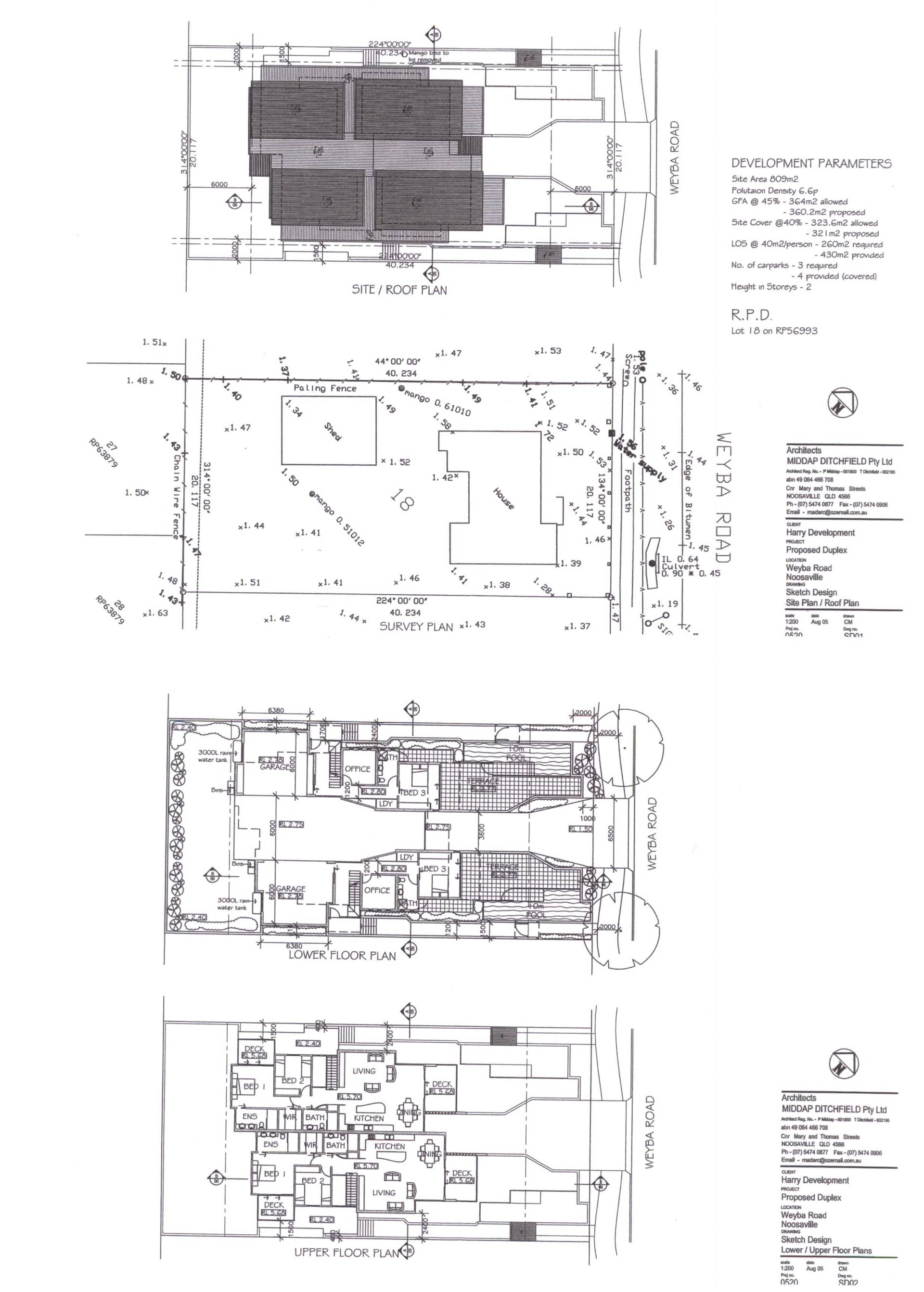
3 1 5 809 m2

809m2 north facing, water views !

Why not stand out in the crowd !

Excellent size
Excellent Location
Excellent Price

This large 809m2 level site has an older style rentable home which could easily be removed to build luxury duplex townhouses
( approved plans are available ). All the hard work has been done in providing the plans for this lovely site opposite the water.
Alternatively, this is the perfect for someone who would like to build their home but does not like the typical estate living.

The position has the benefit of being just a stones throw away to all amenities, cafes, river, shops and famous Gympie terrace
restuarants.

Noosaville is the perfect location for access to the natural playground of the Noosa River and the convenienceof shops, offices, restuarants, all in the square of Weyba Road, Gibson Road and Gympie terrace.

Sustainability Declaration available with Agent.

Call Exclusive Agent Today for inspection, plans and information...........Petrea Pradella 0412 626 536

Details

Suburb Noosaville
Price SOLD
Property Type Residential
Property ID 45
Category House
Land Area 809 m2

Share

Ronald Davey photo

Ronald Davey

0412206563